Pengendalian Erosi / Erosion Control
CV Plantamor melayani jasa Pengendalian erosi, dimaksudkan sebagai upaya pencegahan kerusakan tanah dengan cara mengupayakan resistansi tanah terhadap daya erosi dan mengurangi sifat erosif dari aliran permukaan (surface runoff). Pengendali erosi adalah praktek untuk mencegah atau mengendalikan erosi air atau angin, yang dapat dilaksanakan dengan beberapa cara seperti cara vegetatif, cara mekanik, cara gabungan vegetatif dan mekanis serta cara kimiawi.
Permukaan erosi tanah di lereng terutama disebabkan oleh curah hujan lebat yang meluruhkan tanah bagian atas. Perubahan iklim dan perkembangan aktivitas di bukit yang meningkat berkontribusi pada masalah erosi jika tindakan pencegahan tidak dilakukan untuk melindungi lereng. Erosi dari lereng yang tidak dilindungi dapat menyebabkan kerusakan pada infrastruktur dan gangguan sosiolingkungan di sekitarnya yang menghabiskan biaya besar untuk perbaikan.
Penanganan erosi lereng dengan menggunakan matras
pekerjaan penanganan erosi lereng dengan menggunakan selimut (erosion control net) atau matras (turf reinforcement mat) dan vegetasi. Vegetasi tanpa selimut atau matras umumnya dapat dilakukan pada kondisi lereng tanah yang erosif dengan kemiringan kurang dari 30 derajat.
Selimut atau jaring terbuat dari bahan organic, atau matras yang terbuat dari bahan sintetis yang dikombinasikan dengan tanaman untuk menghasilkan perlindungan lereng jangka panjang. Selimut, jaring atau matras dihamparkan (laid over) pada permukaan lereng yang telah disiapkan dan diangkur pada tanah dengan menggunakan kokot/patok/angkur (staples) untuk menahan selimut atau matras pada tempatnya. Teknik penanaman vegetasi yang tercakup dalam spesfikasi ini adalah metode gebalan, pemboran manual, hydroseeding, taplok dan broadcast seeding.
Pekerjaan ini mencakup persiapan permukaan, pengadaan dan pemasangan selimut atau matras termasuk tanaman. Pekerjaan penanganan erosi ini hanya dilaksanakan pada permukaan lereng yang stabil.
Karakteristik Lereng dan Jenis Pengendali Erosi
| Jenis dan Kemiringan Lereng Maksimum (V:H) | Jenis Pengendali Erosi | Diskripsi Material | Penggunaan |
| Lereng Tanah 1:2 | Tipe I Selimut pengendali erosi jaring ganda (double-net erosion control blankets) | Selimut pengendali erosi terbuat dari serat alami, serat alami dengan serat polimer dan atau serat polimer seluruhnya yang disatukan secara mekanis di antara dua lapisan jaring sintetis atau alami. | Didesain untuk dapat tahan proses degradasi selama minimal 12 bulan. Digunakan untuk lereng yang dalam jangka panjang dapat mendapatkan perlindungan dari erosi secara permanen oleh vegetasi yang tumbuh diantara lapisan selimut/jaring |
| Lereng Tanah 1:1,5 | Tipe II Selimut/jaring pengendali erosi | Selimut yang terdiri dari material serat alami atau polimer yang bersifat lambat terdegradasi disatukan secara mekanis diantara dua lapisan jaring yang dapat terbuat dari material alami, atau serat sintetik yang lambat mengalami pelapukan untuk membentuk matrik menerus. Jaring dari serat alami yang dipilin dan dianyam menjadi lembaran | Didesain untuk dapat tahan proses degradasi selama minimal 24 bulan. Digunakan untuk lereng yang dalam jangka panjang dapat mendapatkan perlindungan dari erosi secara permanen oleh vegetasi yang tumbuh diantara lapisan selimut. Didesain untuk memegang campuran bahan hydroseeding ( mulsa, perekat, kompos,benih), tahan proses degradasi selama minimal 12 bulan |
| Lereng Tanah 1:1 | Tipe III Selimut/jaring pengendali erosi / Tekstil tenun terbuka (Open weave textiles) | Jaring dari serat alami yang dipilin dan dianyam menjadi lembaran Tekstil tenun terbuka yang tersusun dari benang alami yang lambat mengalami pelapukan atau polimer atau benang tenun membentuk suatu matriks menerus | Didesain untuk dapat tahan proses degradasi selama minimal 12 bulan Didesain untuk dapat tahan proses degradasi selama minimal 36 bulan. Digunakan untuk lereng yang dalam jangka panjang dapat mendapatkan perlindungan dari erosi secara permanen oleh vegetasi yang tumbuh diantara lapisan selimut |
| Lereng Tanah 1:1 | Tipe IVA Matras perkuatan | Matras yang tersusun dari serat sintetis, filamen, jaring, jaring kawat, dan/atau material lain yang terstabilisasi terhadap radiasi UV dan bersifat non-biogradable maupun non-photodegradable, yang diproses menjadi suatu matriks tiga dimensi yang permanen yang dapat dilengkapi dengan komponen biogradable. | Digunakan untuk mencegah erosi lereng secara permanen dan vegetasi yang tumbuh diantara lapisan matras tidak bisa memberikan perlindungan yang erosi yang cukup tanpa bantuan matras. |
| Lereng Tanah 1:0,5 | Tipe IVB Matras perkuatan | ||
| Tanah dan atau kombinasi Tanah dan Batuan 1:0,5 | Tipe IVC Matras perkuatan | ||
| Tanah berbatu dan atau berpasir | Selimut pengendali erosi | Selimut pengendali erosi dari serat alami tenun terbuka ( non woven) | Didesain untuk menjadi media tanam , tahan proses degradasi selama minimal 12 bulan |
Produk matras pengendali erosi membantu pembuangan air yang mengalir, dan koefisien kekasaran yang meningkat, dikombinasikan dengan penetrasi cahaya yang lebih besar, menciptakan lingkungan pengasuhan di mana sistem akar rumput dapat tumbuh dan menstabilkan lereng. Bergantung pada bidang penerapan, rangkaian solusi ini juga dapat diterapkan pada tanggul jalan, struktur tanah bertulang, lansekap, penutup TPA, tepi sungai, kolam, danau dan waduk.
matras pengendali erosi dari polimer seperti PE, HDPE yang membentuk matras tiga dimensi di rancang untuk memperkuat dan menahan tanah pada lereng curam. Struktur void yang tinggi memperkuat permukaan atas tanah, sehingga mencegah erosi di permukaan lereng dan memberikan dukungan permanen pada tanah bagian atas dan pertumbuhan vegetasi.
Manfaat matras pengendali erosi
- Melindungi segala jenis lereng dalam jangka panjang
- Cepat dan mudah dalam pemasangan serta ramah lingkungan
- Pengendali erosi yang efektif mulai dari tahap awal
- Melindungi wilayah permukaan hijau dari erosi dengan cara pengendapan
- Menambah vegetasi pada lereng curam
- Matras pengendali erosi memiliki beberapa warna terutama tersedia dalam warna hijau agar dapat menyatu dengan alam
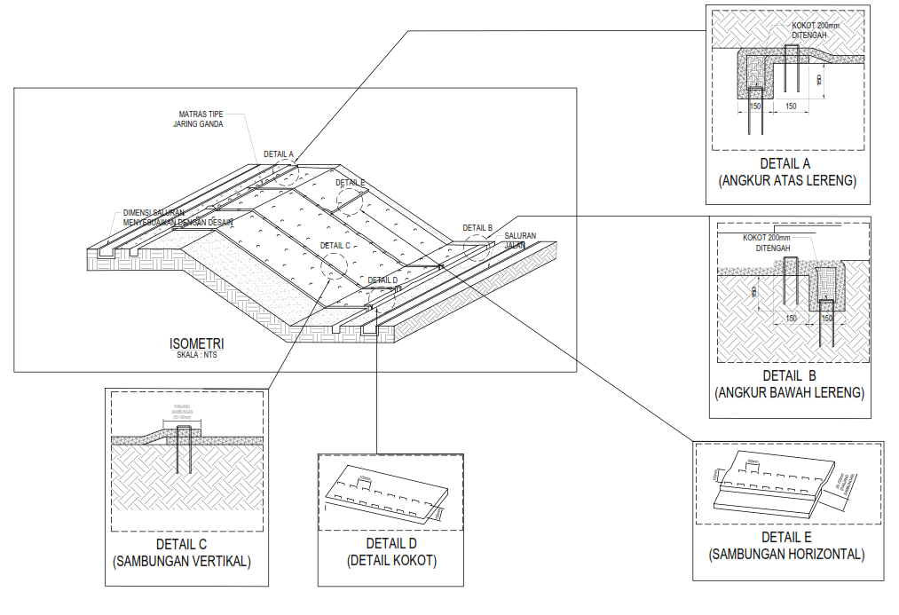
Pemasangan Pengendalian Erosi dengan Selimut – Vegetasi

Ilustrasi Pemasangan Angkur pada Parit untuk Jangkar Parit

Ilustrasi Tumpang Tindih ketika Selimut atau Matras Harus Disambung

Ilustrasi Contoh Pemasangan Selimut atau Matras Pelindung Erosi pada Lereng Dengan Air Tanah Tinggi
Pengendalian Erosi Secara Mekanik
Pencegahan erosi dengan metode mekanik adalah suatu upaya yang dilakukan agar memperlambat aliran permukaan dan pada gilirannya akan memperbesar erosi. Contoh metode mekanik untuk pengendalian erosi yang umum digunakan petani adalah: a. Penterasan terasering b. Pengolahan lahan secara kontur c. Pembuatan chek dam d. Pembuatan rorak e. Pembuatan guludan terutama di lahan sawah f. Reboisasi penghijauan. Pemilihan cara pengendalian secara mekanik di atas disesuaikan dengan keadaan di lapangan yang menyangkut topografi lahan, biaya, jenis tanaman yang akan diusahakan dan tingkat erosi yang terjadi. Prinsip daripada penterasan adalah suatu upaya pengendalian erosi yang memotong lereng; karena beberapa hasil penelitian mengungkapkan bahwa semakin panjang lereng semakin tinggi laju erosi yang terjadi. Diharapkan bahwa pemotongan panjang lereng dengan penterasan akan memperkecil laju erosi.

Ilustrasi Contoh Pemasangan Selimut atau Matras Pelindung Lereng dengan Terasering

Ilustrasi Contoh Pemasangan Selimut Atau Matras Pelindung Erosi pada Lereng Tanpa Terasering
Pengendalian erosi pada lereng bendungan Randugunting Blora Jawa Tengah





proses penanaman bibit rumput



proses penyiraman dan maintenance



hasil akhir


Pengendalian Erosi di Bogor




pengendalian erosi di ciloto
